Unilever Iran
Unilever Iran
Scroll Down
Location
Tehran
Service
Design
Customer
FMCG, Food / Beverage
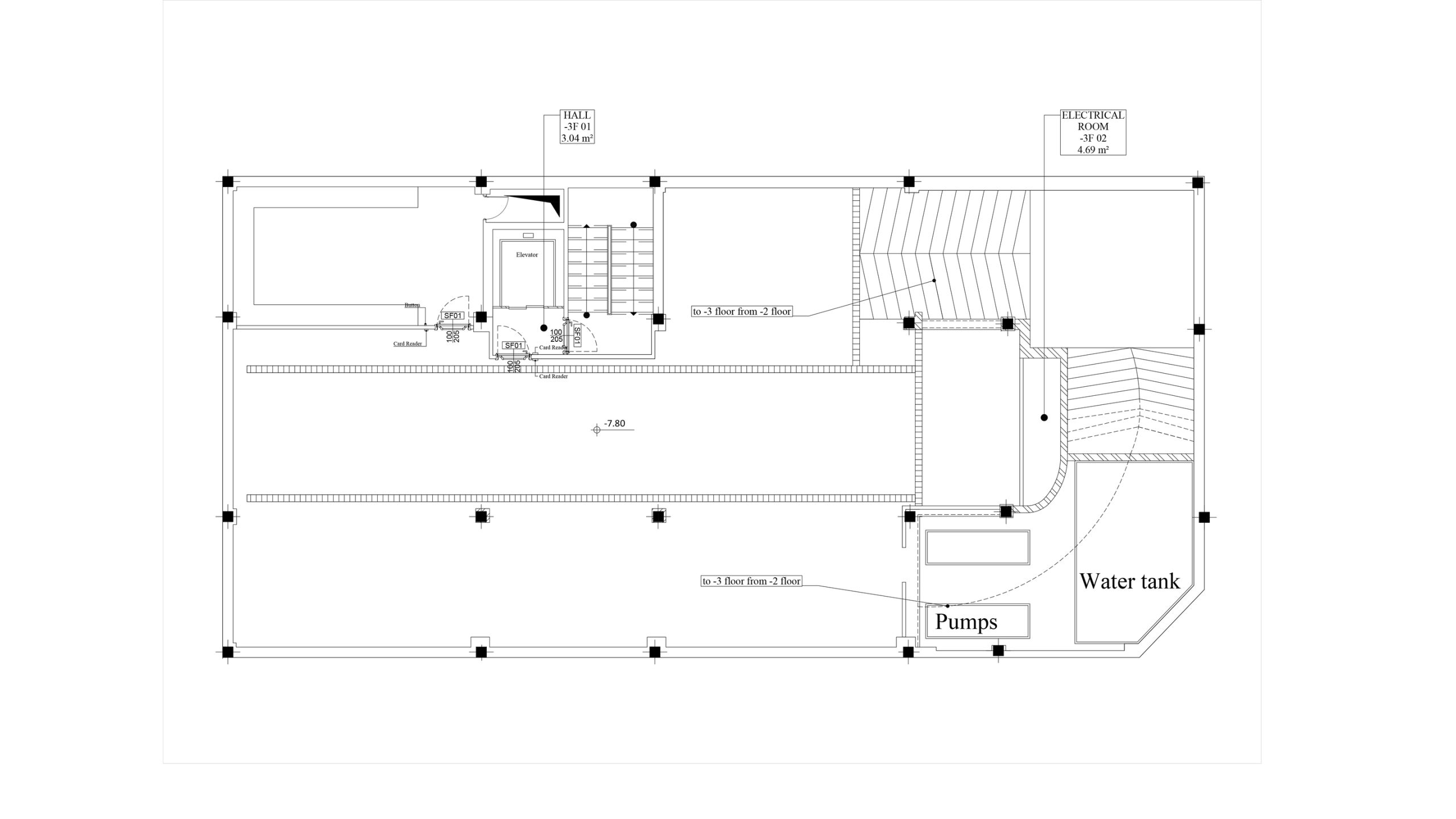
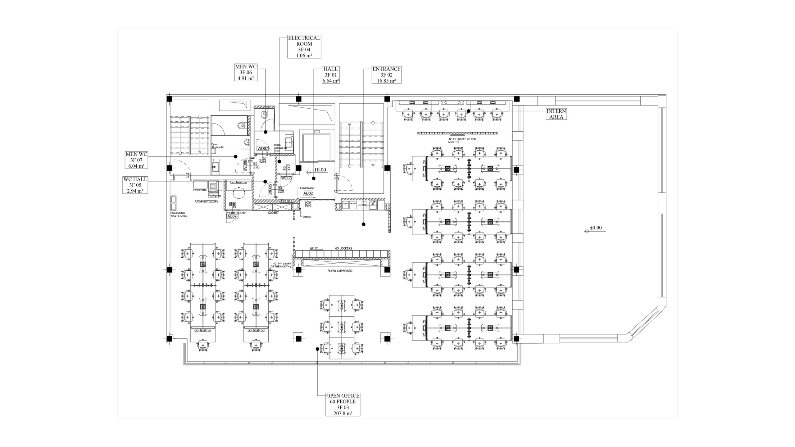
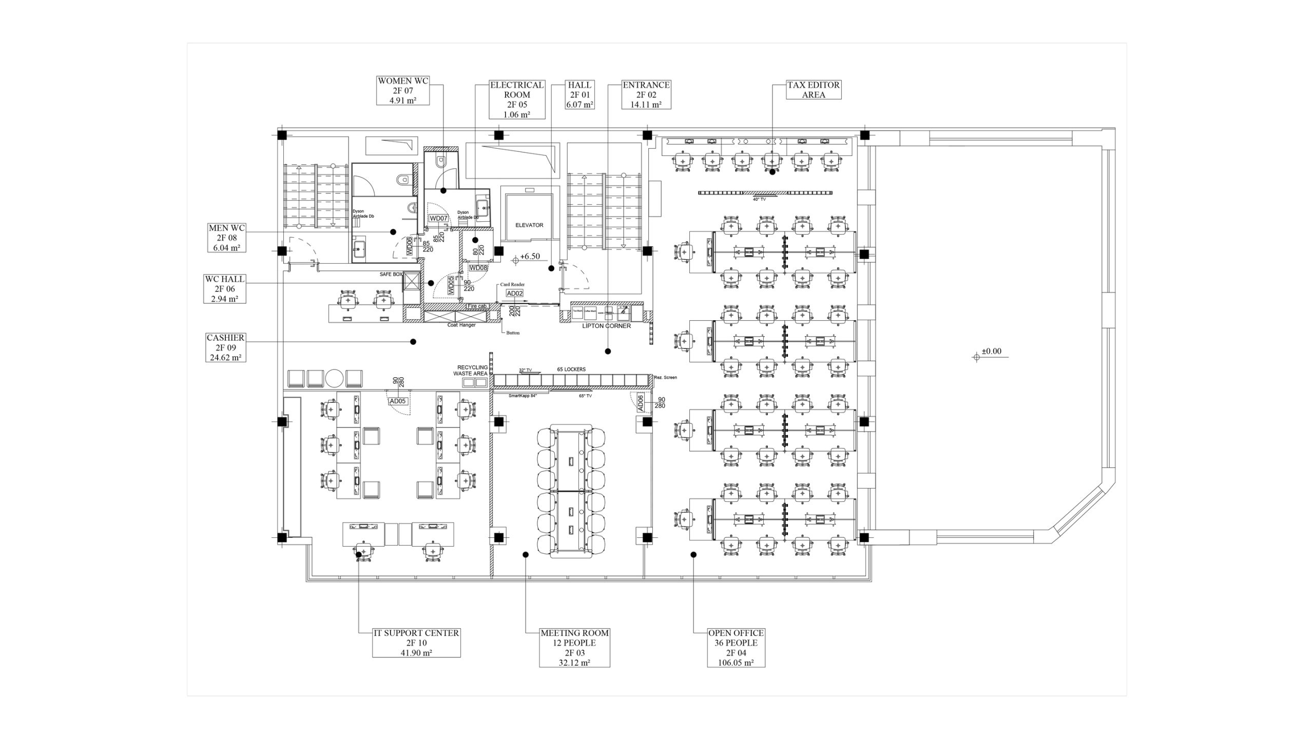
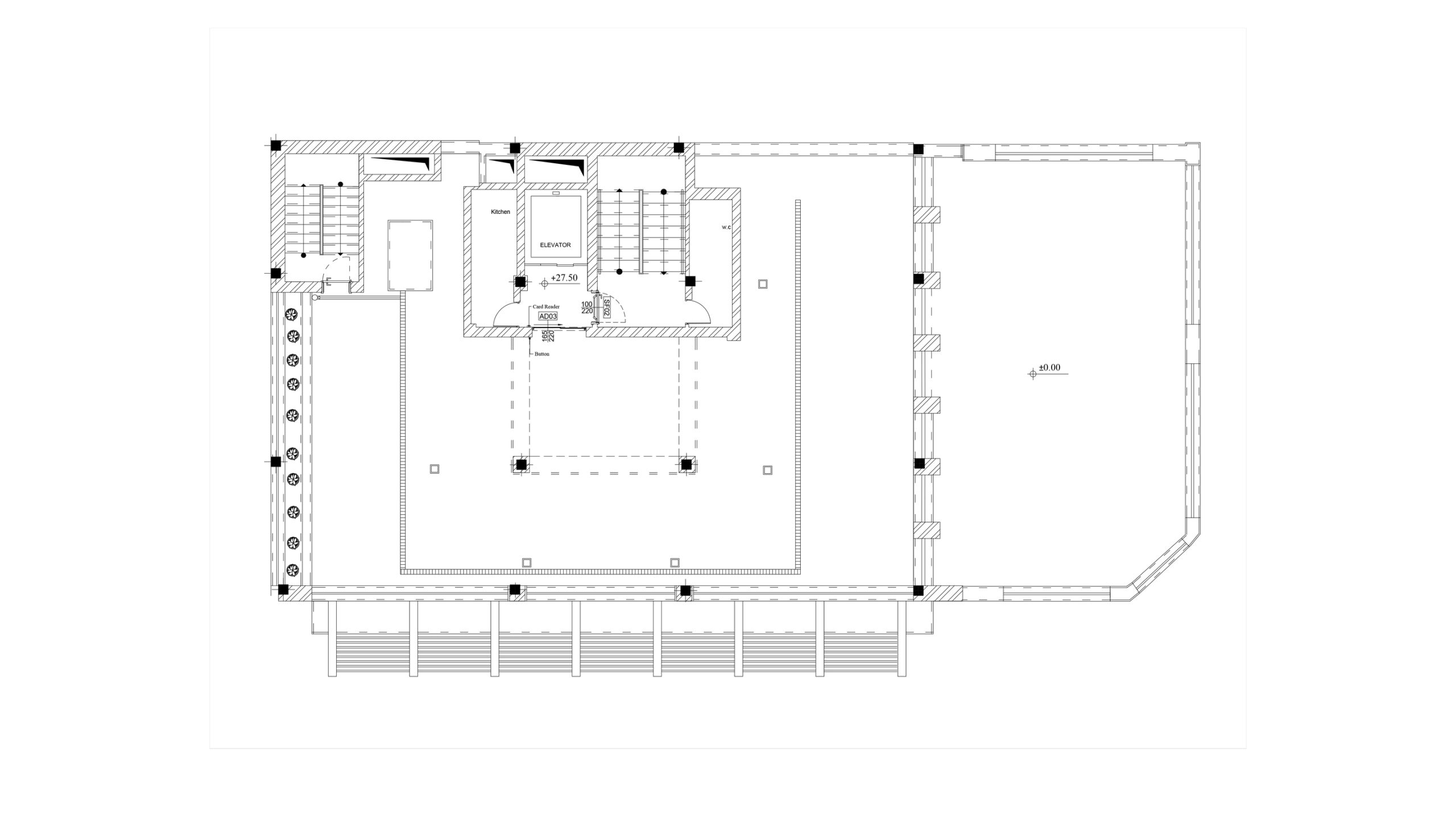
Area
2505 m2
Year
2016
Tags
+ PROJECT ABOUT

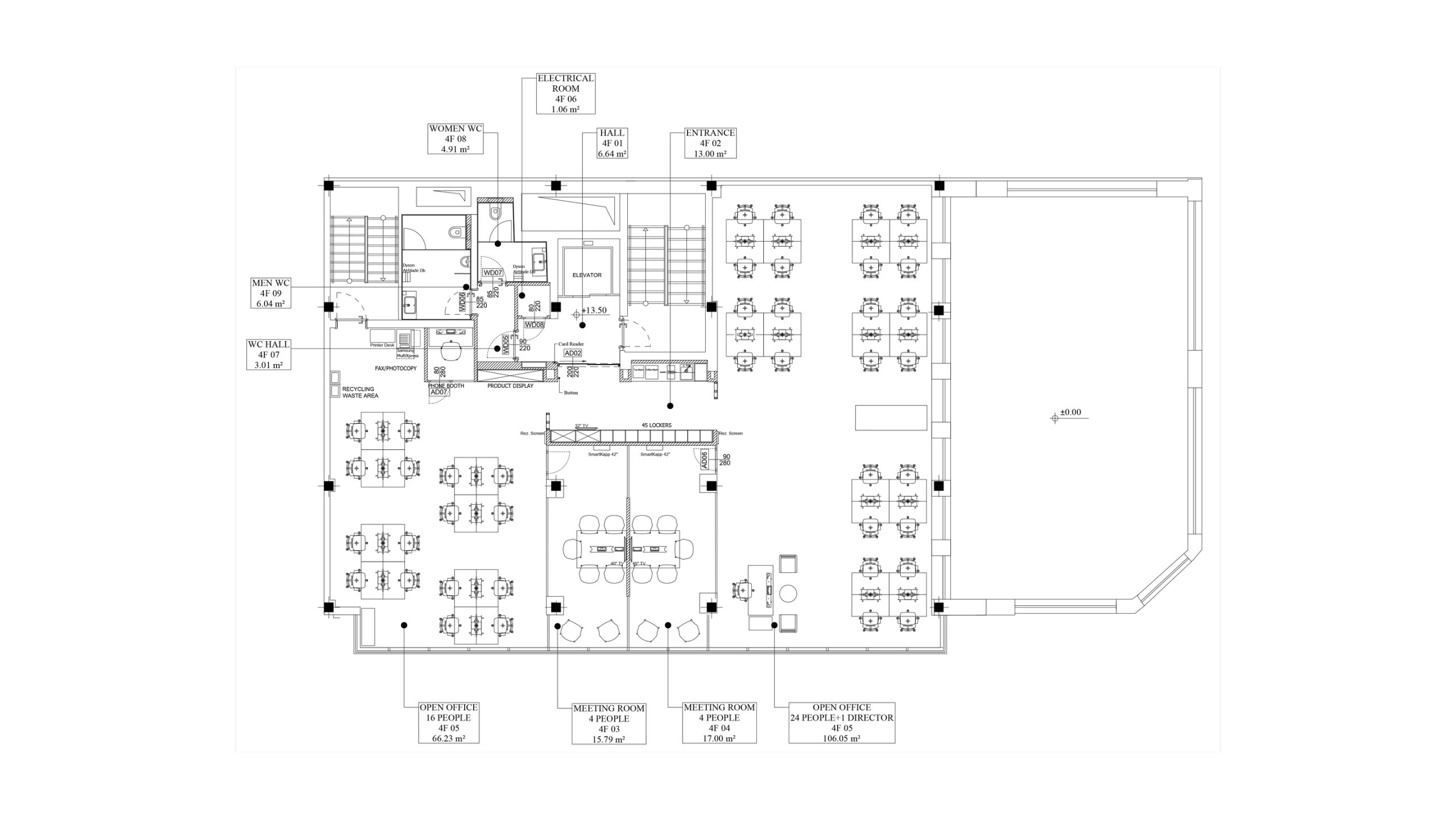
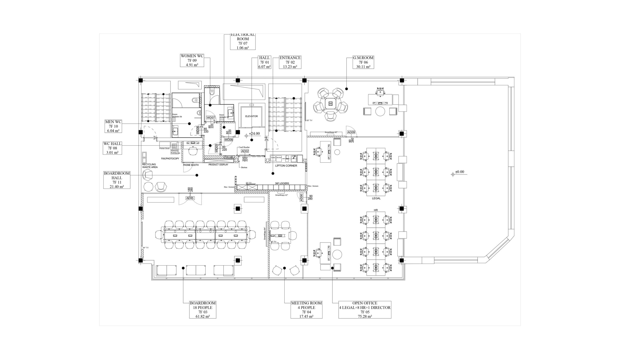
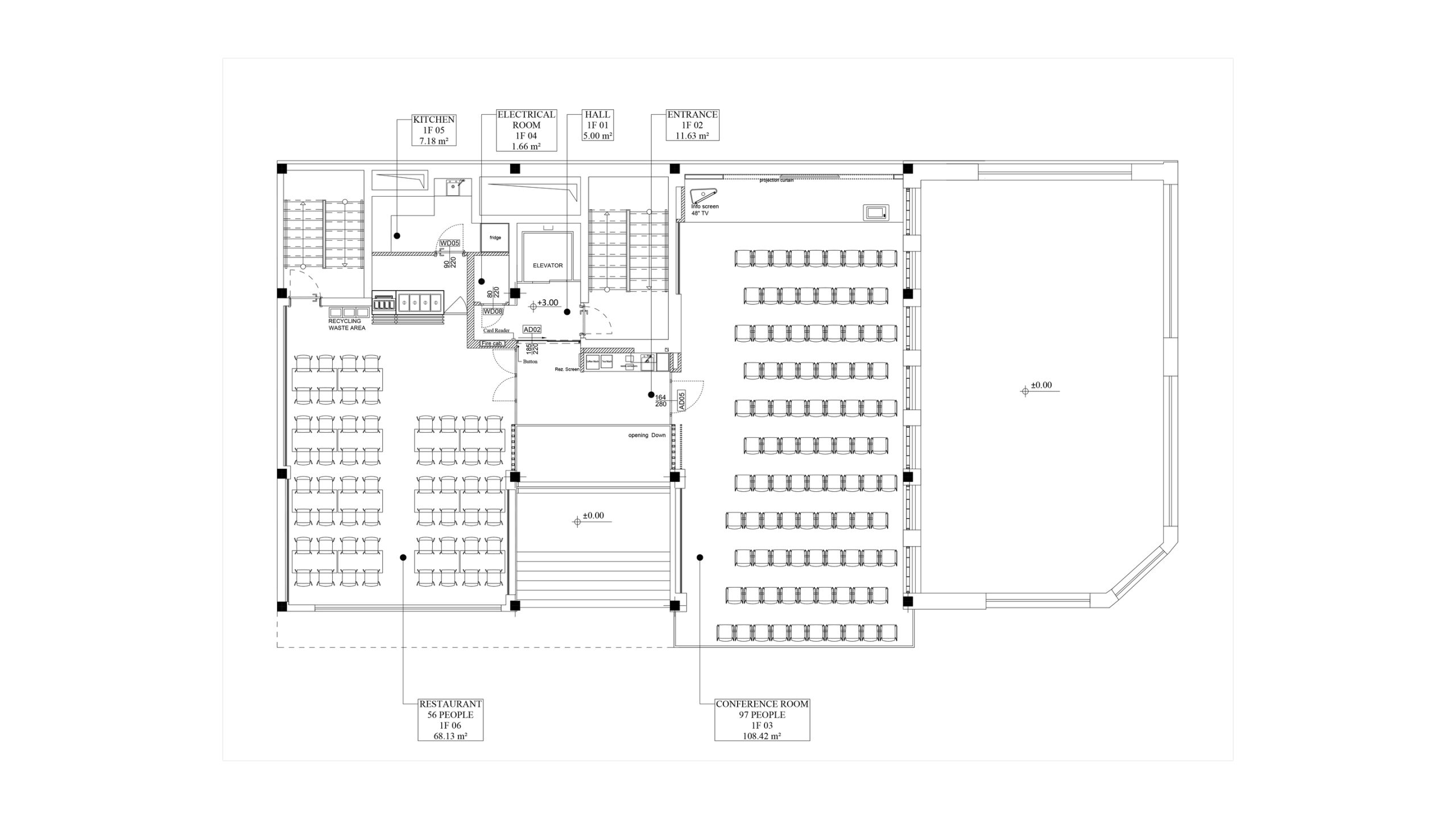
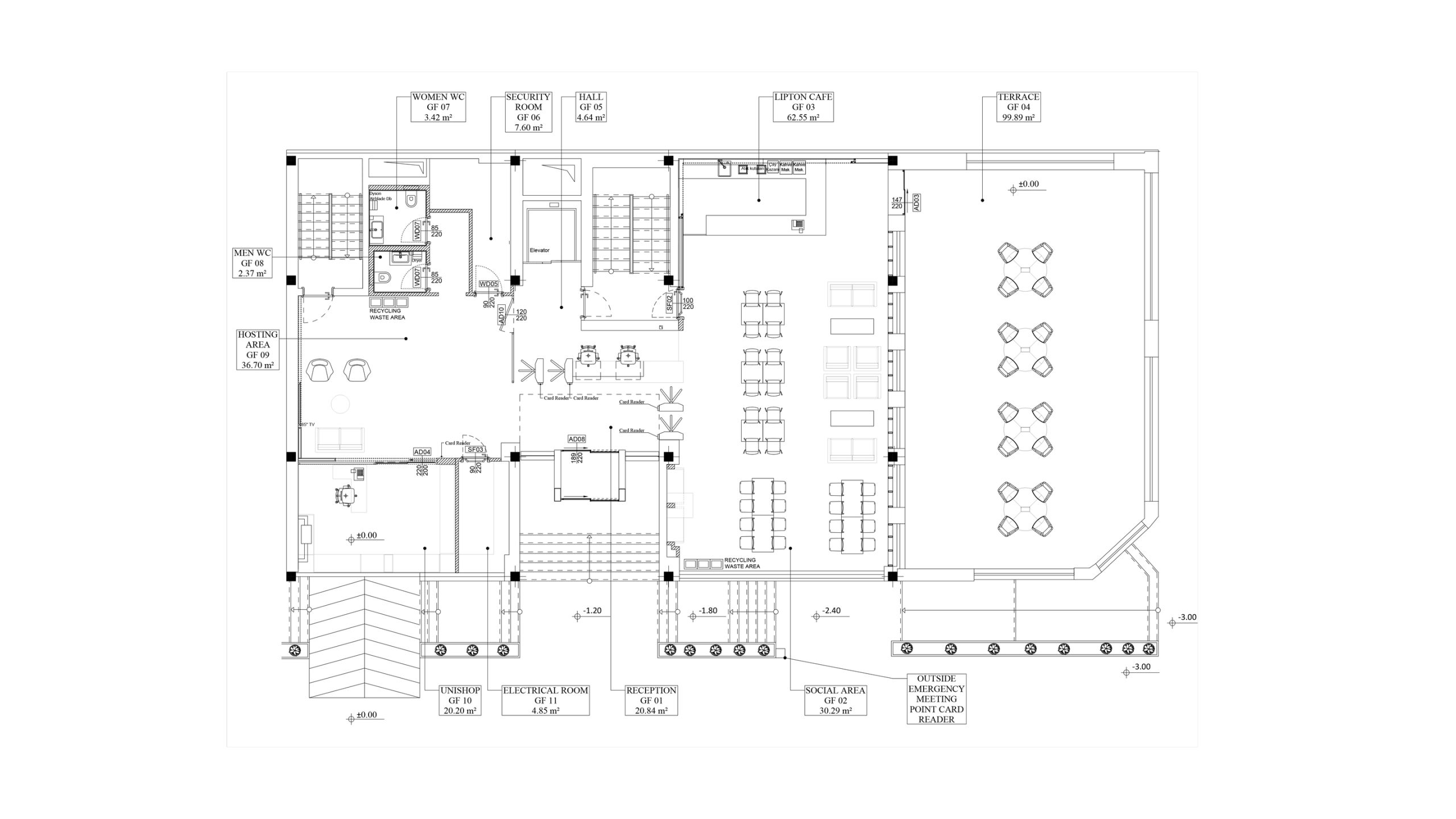
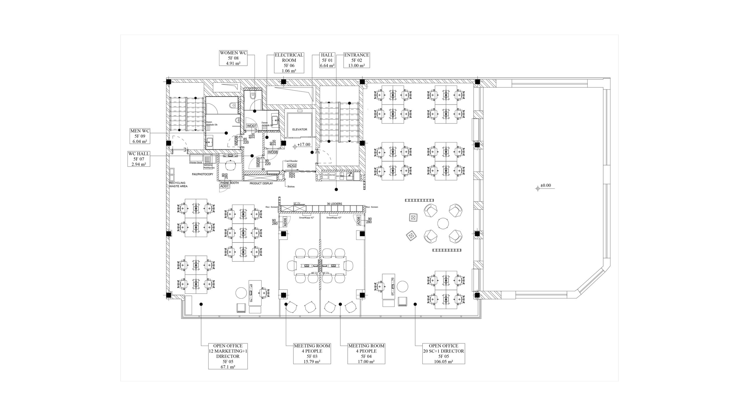
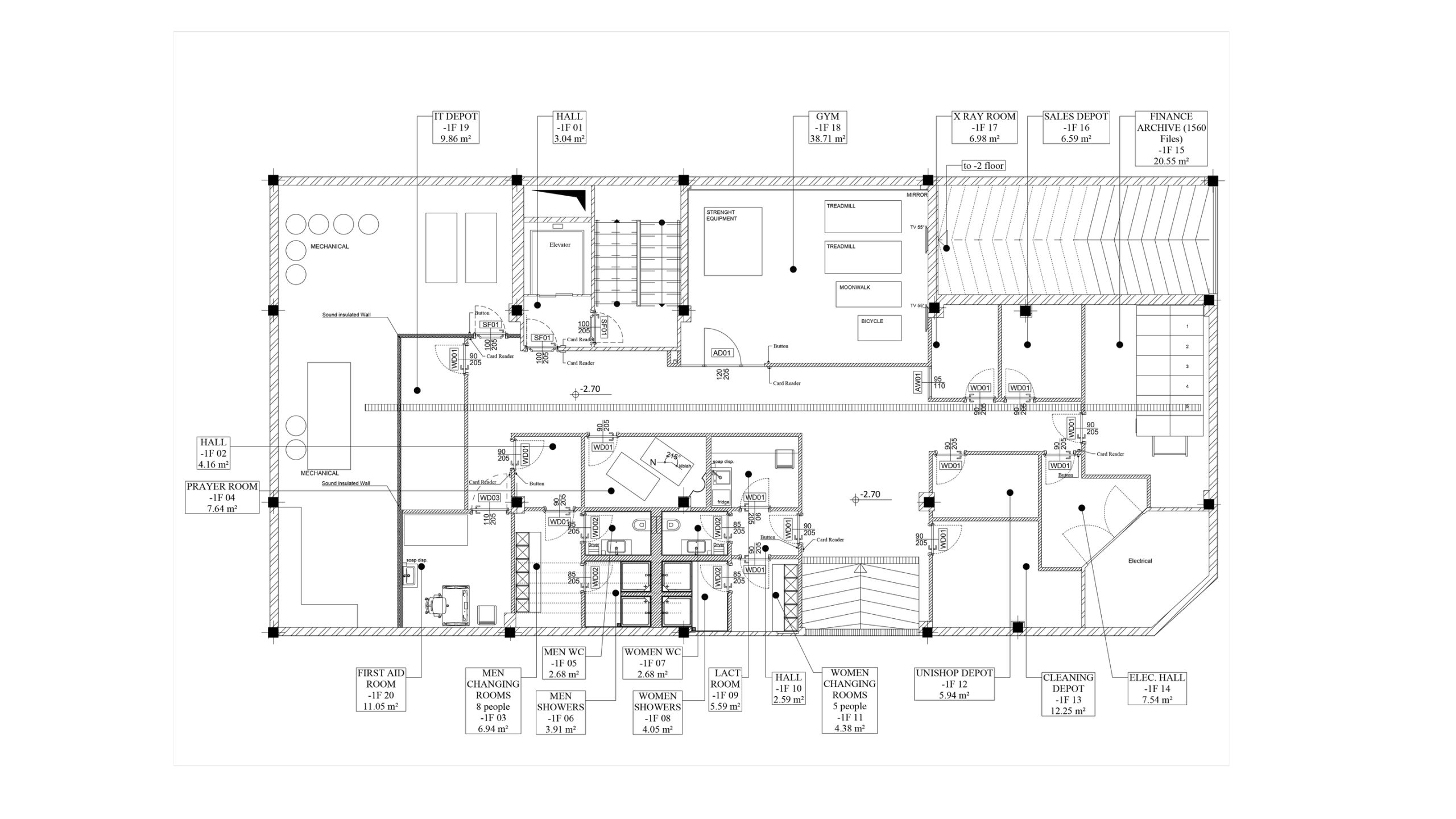
The Unilever Iran office reflects a human-centered and flexible workplace shaped by a clean and contemporary design approach. defined by clear spatial organization and strong brand integration, the space creates a cohesive and engaging environment.

Open work areas, social zones, and meeting spaces support collaboration and focus, while a curated material palette ensures a balanced and comfortable workplace experience.

Project Location