Architecht Teknopark
Architecht Teknopark
Scroll Down
Location
Istanbul
Service
Design & Construction
Customer
Hardware / Software Development, Technology
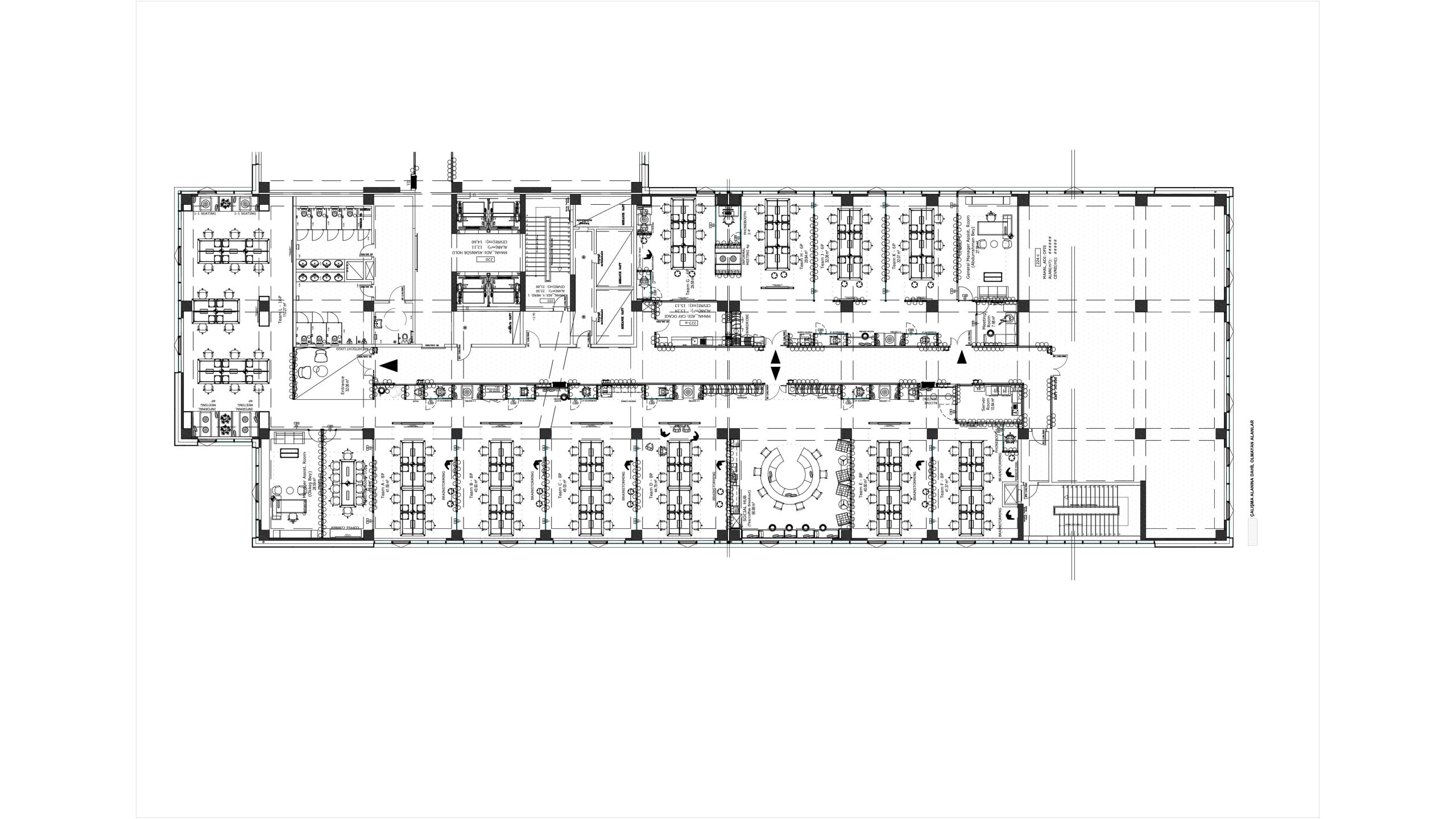
Area
1,675 m²
Year
2020
Tags
+ ABOUT PROJECT

The architecht office reflects a technology-driven identity through subtle references to coding language and three-dimensional geometric patterns integrated throughout the space. shaped by a human-centered approach, the office combines informal meeting areas, a social café, and flexible work zones that support both collaboration and focused work.

Custom-designed elements—including integrated storage seating, acoustic lighting, ceiling baffles, and mobile components—enhance comfort, functionality, and acoustic quality. a curated material palette aligned with the brand identity creates a balanced and productive environment, while modular planning allows for a flexible and evolving workplace.

Project Location