Feltouch
Scroll Down
Location
Istanbul
Service
Design & Construction
Customer
Design, Manufacturing
Area
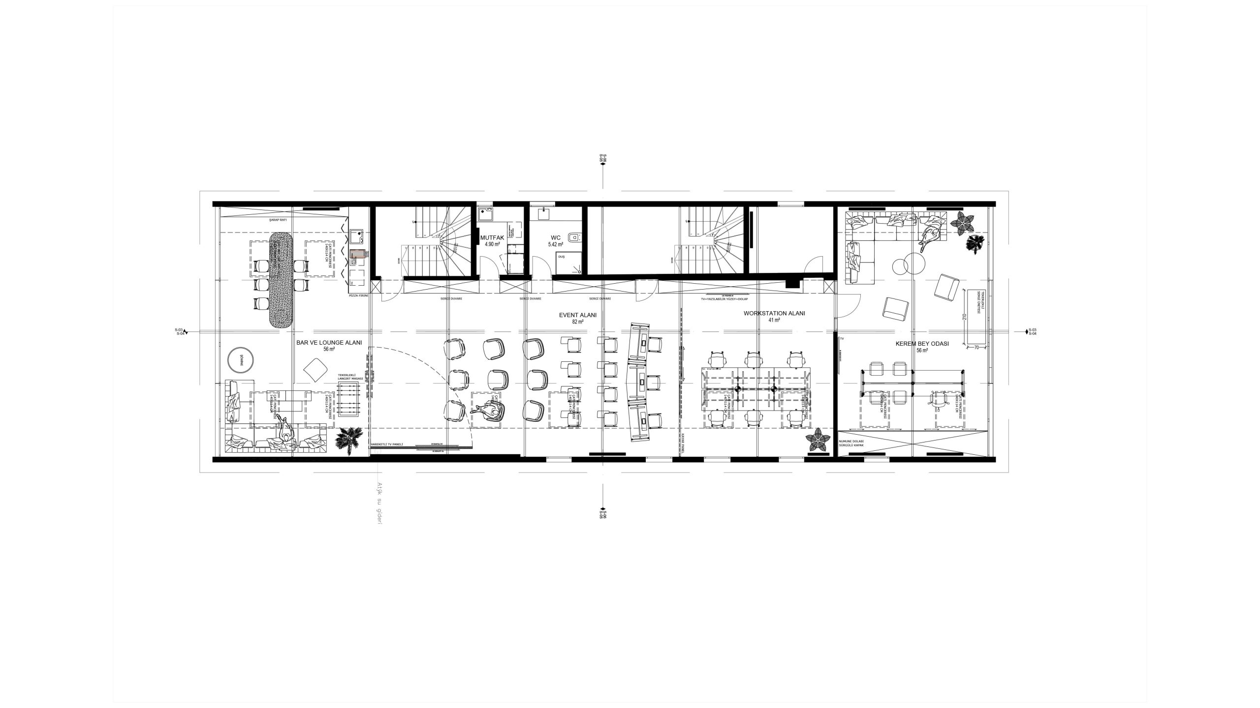
300 m²
Year
2023
Tags
+ ABOUT PROJECT

The Feltouch Center reflects the brand’s commitment to sustainability through the use of recycled and eco-friendly materials. Defined by flexibility, layered perspectives, and a three-dimensional rhythm, the design showcases PET felt products in a creative and engaging way.

Adaptable spaces support collaboration, interaction, and new experiences, accommodating meetings, brainstorming, and events. A material palette rooted in the brand—combining acoustic felt, wood, marble, and greenery—creates a warm, inspiring, and immersive environment.

Project Location