Tırtıl Villa
Tırtıl Villa
Scroll Down
Location
Bodrum / Muğla
Service
Design & Construction
Customer
No - Name
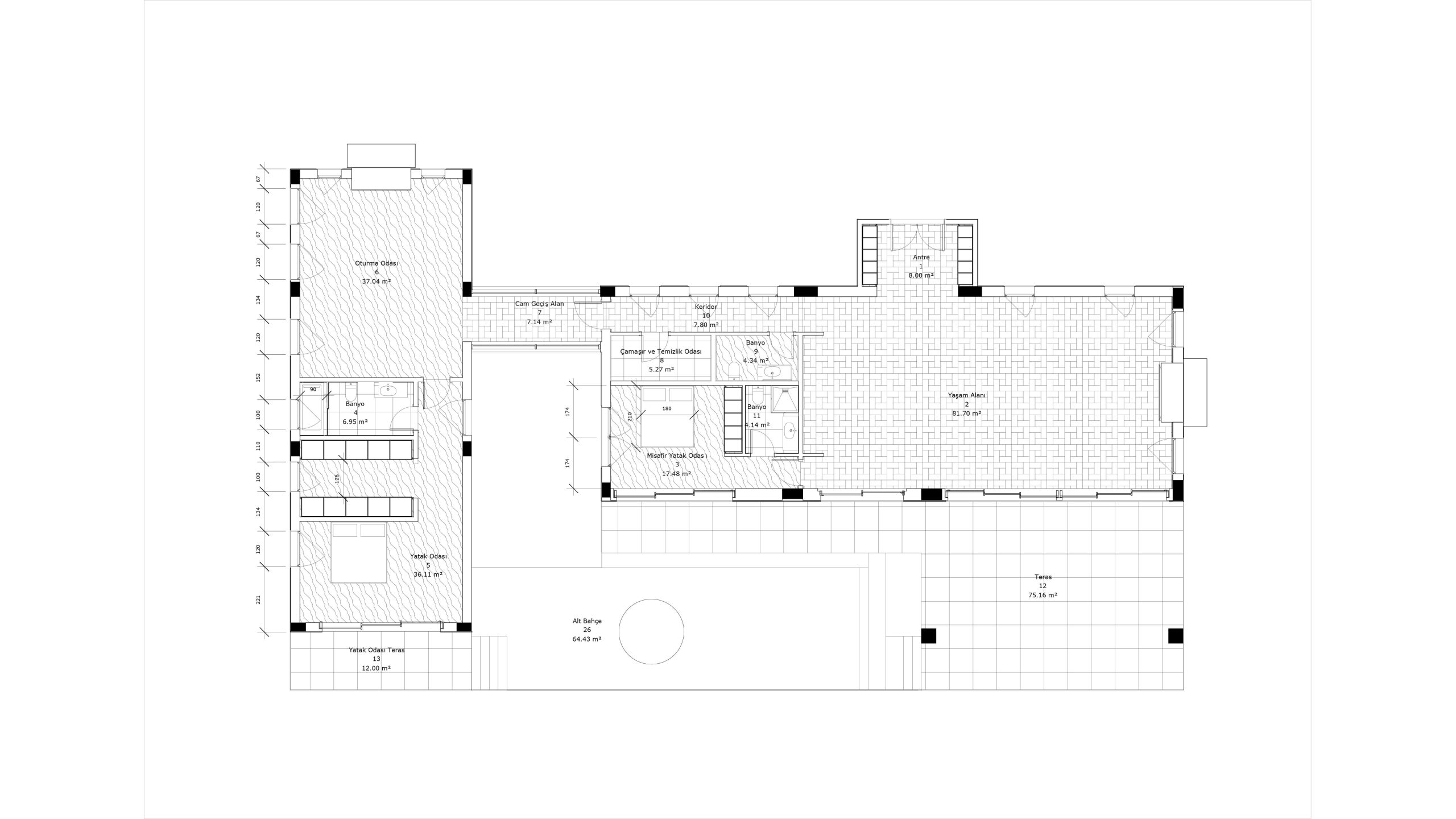
Area
448 m2
Year
2022
Tags
+ PROJECT ABOUT

The interior is shaped by a restrained palette and a clear spatial hierarchy. materials are used in a simple and honest way, creating a calm and timeless atmosphere. transitions between spaces are soft and continuous, supporting a fluid living experience. the design focuses on clarity, balance, and spatial comfort.

Warm tones and natural finishes define the character of the spaces. light is used as a guiding element, enhancing both function and perception. furniture and built-in elements are carefully aligned with the architectural framework. the result is a cohesive interior that feels both relaxed and well-defined.

Project Location