ÖDTÜ Ankara
ÖDTÜ Ankara
Scroll Down
Location
Ankara
Service
Design & Construction
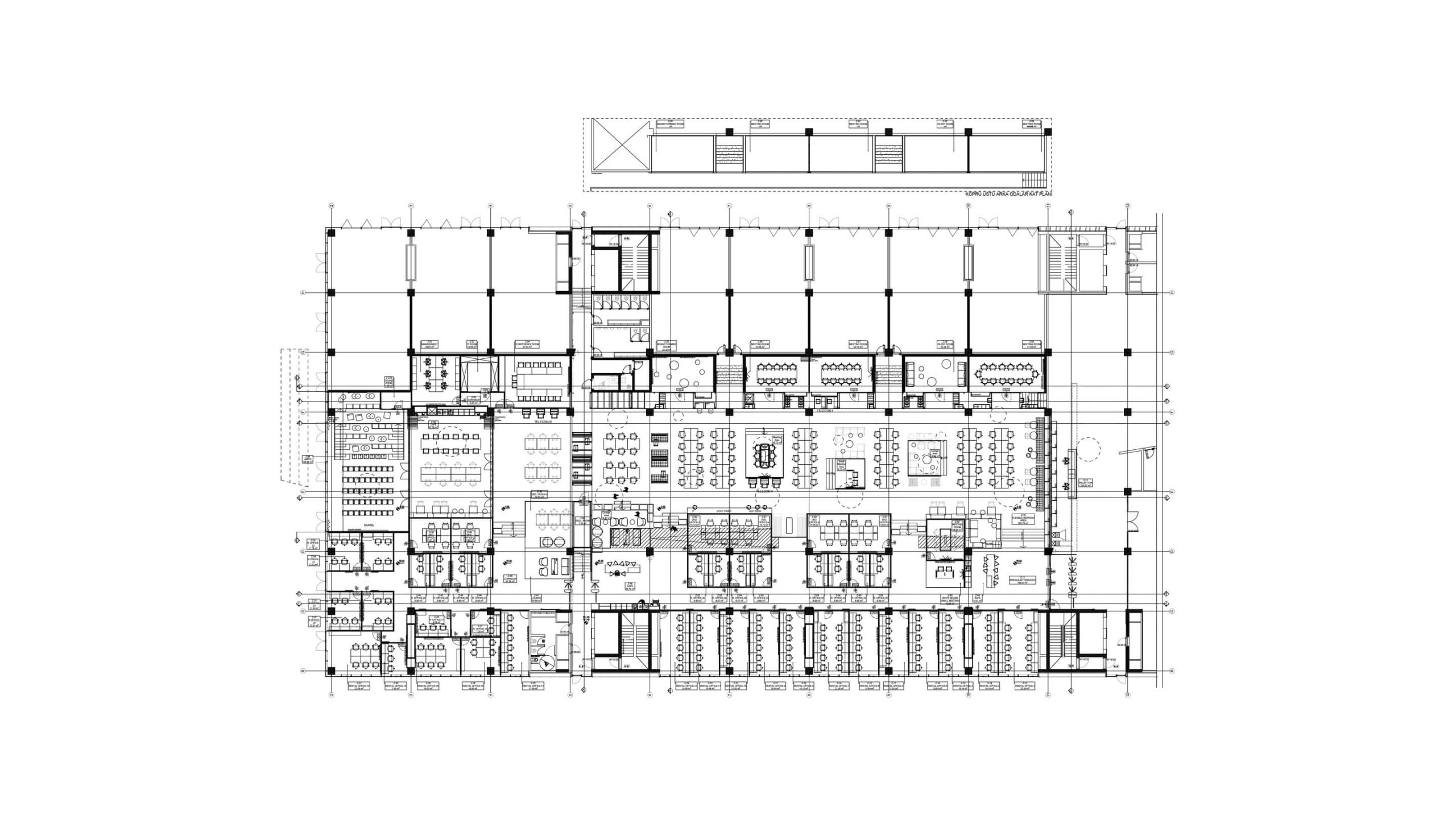
Customer
Technology & Innovation Hub
Area
378 m2
Year
2019
Tags
+ PROJECT ABOUT

The ODTÜ Teknokent workspace reflects a dynamic and innovation-driven identity, shaped by flexibility, collaboration, and a contemporary design approach. defined by open layouts, layered spatial organization, and adaptable zones, the space supports the evolving needs of startups and technology-driven teams.

Designed with a user-centered approach, the workspace brings together collaborative areas, focus zones, and social spaces that encourage interaction and knowledge sharing. custom-designed elements and a carefully curated material palette create a vibrant yet balanced environment, fostering creativity, productivity, and a strong sense of community within the teknokent ecosystem.

Project Location