Han Space Levent
Han Space Levent
Scroll Down
Location
Istanbul
Service
Design & Construction
Customer
Coworking
Area
2.000 m2
Year
2019
Tags
+ PROJECT ABOUT

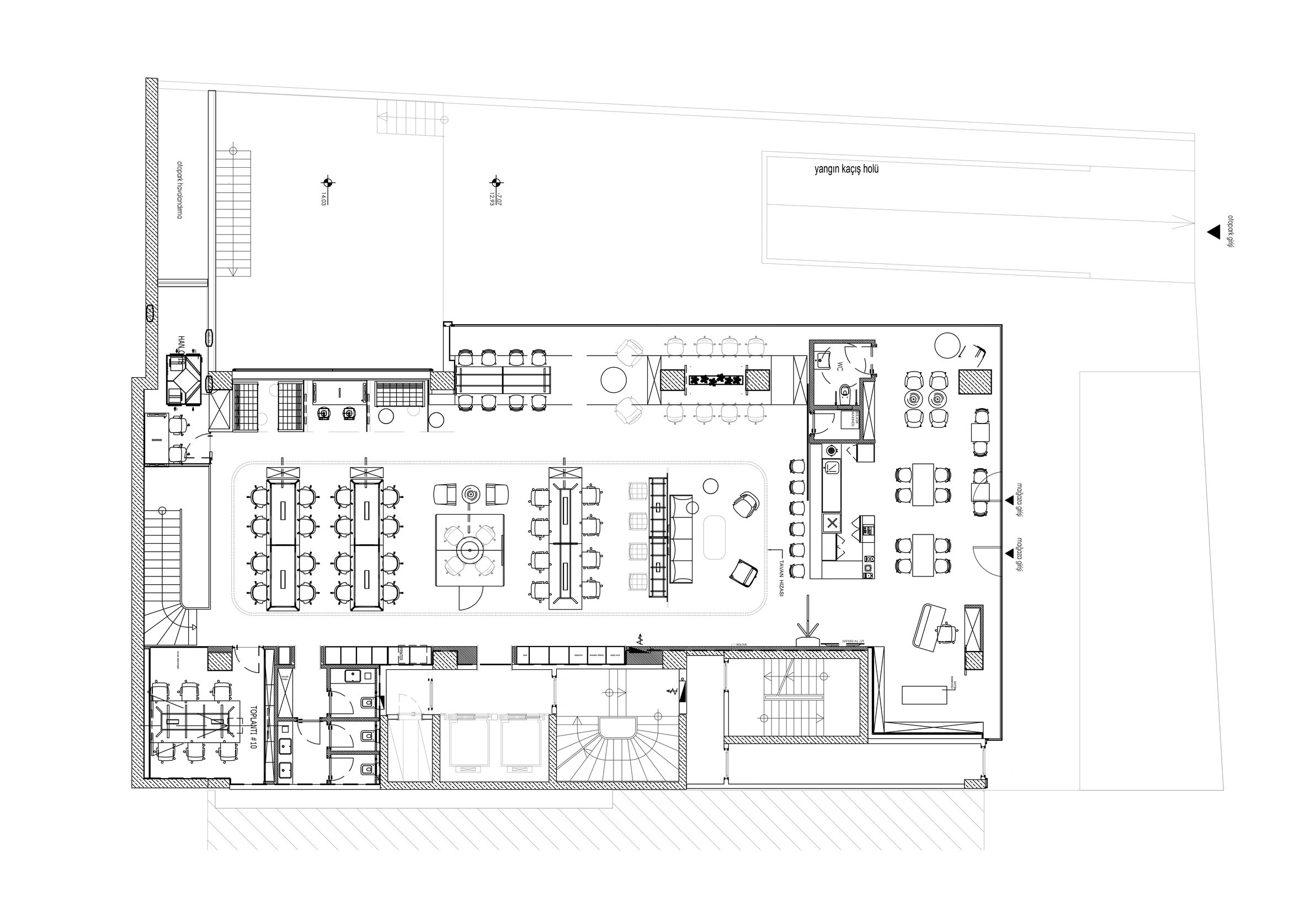
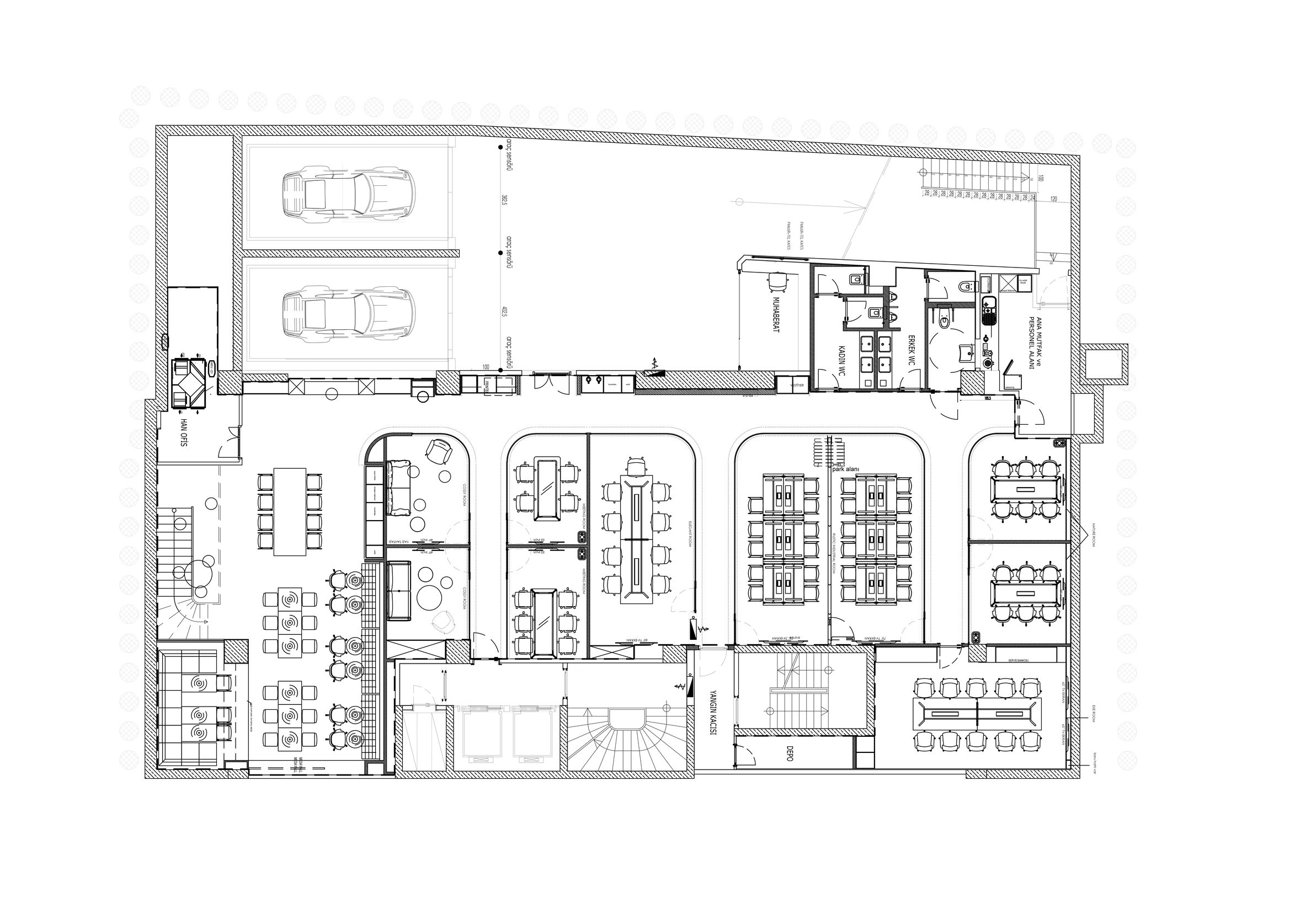
“Inspired by the traditional concept of the “Han”—a place of gathering and social exchange—the project reinterprets this cultural heritage as a contemporary coworking ecosystem. Designed with a human-centered and technology-driven approach, the space offers tailored solutions for companies of all scales, blending shared work environments with social and informal zones."

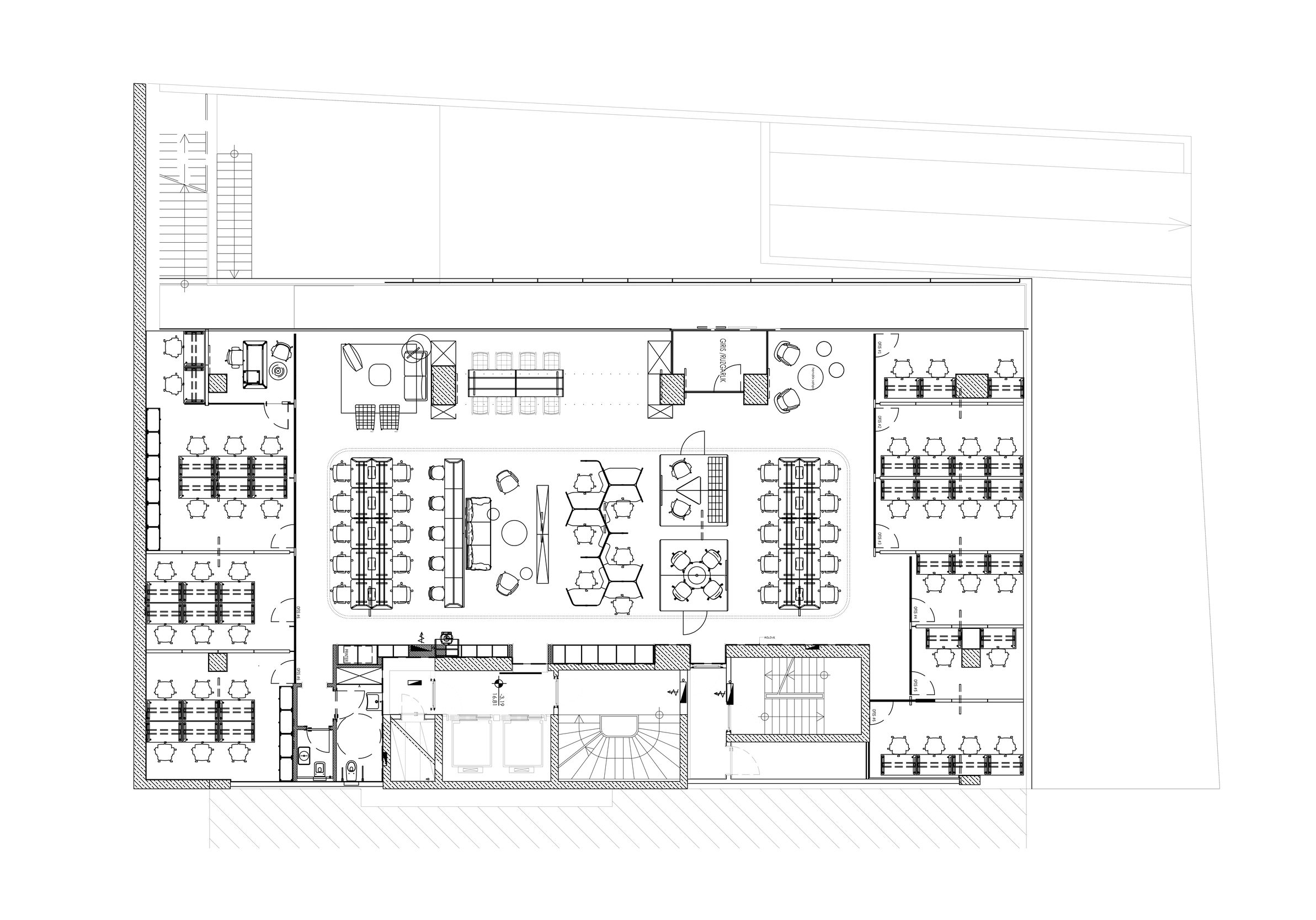
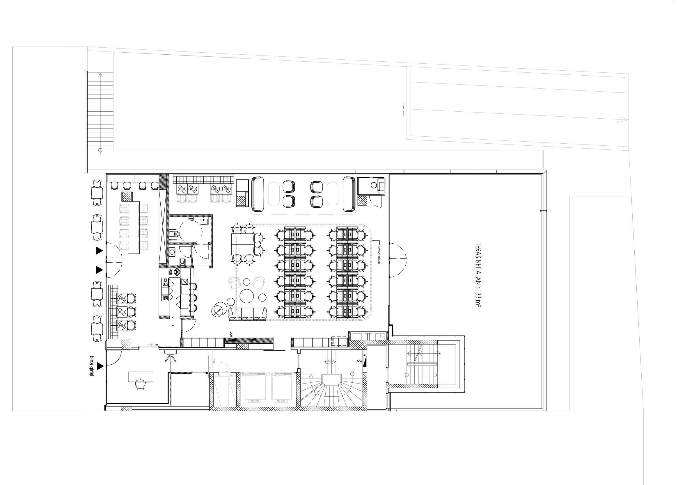
Spanning four floors, the layout organizes meeting and social areas on the lower level, while upper floors host flexible workspaces and collaborative zones. Reconfigurable seminar areas, curated art pieces, and integrated acoustic solutions enhance both functionality and comfort. A refined material palette—combining LVT, carpet, and custom-designed elements—creates a warm, adaptable, and community-driven workplace.

Project Location