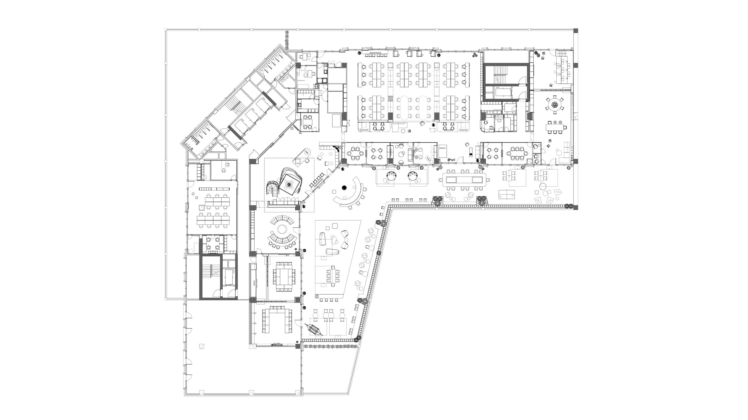
Confidential Global Nutrition Company Hilltown Office
Confidential Global Nutrition Company Hilltown Office
Scroll Down
Location
Istanbul
Service
Design & Construction
Customer
Unnamed Company
Area
1600 m2
Year
2025
Tags
+ ABOUT PROJECT

A glocal design language bridges global standards with local culture, creating inclusive, people-centered environments where everyone feels valued. Material storytelling inspired by natural ingredients—such as cocoa, milk, and coffee—adds a sensory link to the company’s core product categories.

This project is not only about design—it is about creating a holistic workplace habitat. By weaving together sustainability, cultural identity, ergonomics, and layered storytelling, it shapes an environment where work and wellbeing exist in harmony.

Project Location